Charming Opportunity In Established Neighborhood

$460,000 2419 Stonehill Ave Valrico FL 33594

  4   |    2   |    2702 Sq Feet

Status

Featured

Property Type

Single Family Home

Lot Size

10200

Description
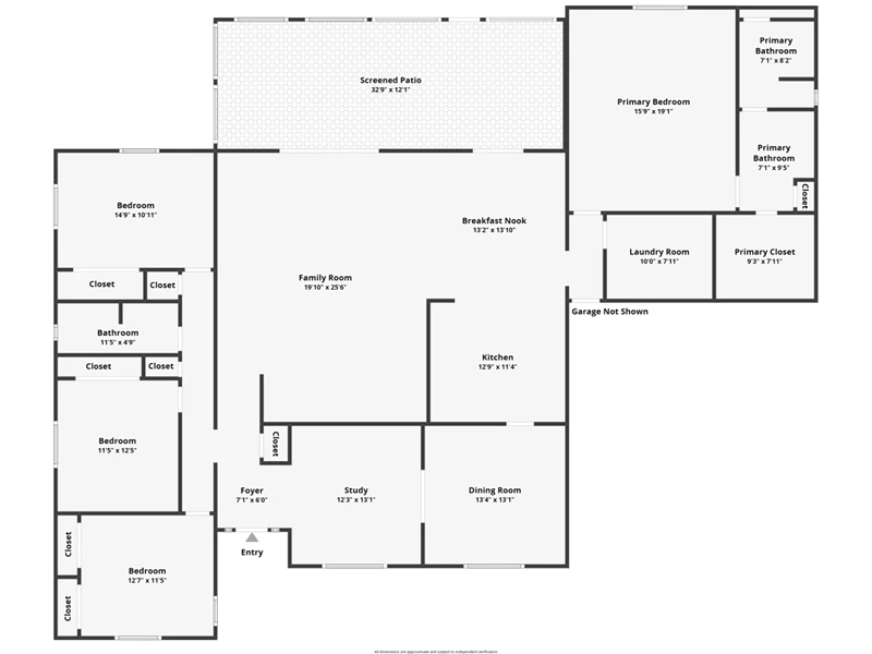
This home has been featured at www.HomesWithRVParking.com. Situated on a quiet dead-end street in the well-established neighborhood of Wellington, this Valrico home offers the freedom of no HOA and is zoned for top-rated schools. The property features 4 bedrooms, 2 baths, an oversized 2-car garage with extra storage space, and an extended parking pad perfect for an RV or boat. Inside, you’ll find a spacious family room with vaulted ceilings, built-in shelving, and a stone wood-burning fireplace. The main living areas feature wood-look plank tile flooring. The home also offers a versatile formal living room that could serve as an office or den, a dining room, and an eat-in kitchen with wood cabinetry and granite countertops.The primary suite includes a walk-in closet with built-ins and an updated ensuite bath with luxury vinyl flooring, dual sinks, and direct access to the backyard—ideal for a future pool bath. The secondary bedrooms are generously sized, split from the primary, and feature new carpet. A large covered and enclosed back patio extends the living area and provides a comfortable space to enjoy the outdoors. Recent improvements include new plumbing throughout, a 2025 water heater, HVAC (2023), metal roof (2013), and a newer septic drainfield. Conveniently situated near SR 60 with easy access to I-75, I-4, and the Selmon Expressway, this home is close to shopping, dining, and recreation at Lithia Springs Park and Buckhorn Springs Golf & Country Club.
Property Features
  Close to gym/workout facility
  Close to shopping
  Near highway/freeway
  Near schools
  Public transportation access
  2-car garage
  Brick exterior
  Patio/deck
  Ceiling fans
  Central A/C
  Ceramic tiles flooring
  Eat-in kitchen
  Family room
  Fireplace
  Formal dining room
  Security system
  Walk-in closet
Listed By:Anthony Sparacino Florida Executive Realty 1-800-216-8953 
Contact Agent

By providing a phone number, you give us permission to call you in response to this request, even if this phone number is in the State and/or National Do Not Call Registry.

Direct link: https://www.tampabayareawaterfront.com/mylistings/direct/585f39767a461b64

All real estate listing information on this page is sourced, posted, and maintained by the agent(s) operating this website.